 | T.K生さんより頂いた図面(組立図)です。この寸法に合わせて窓を製作します。
|
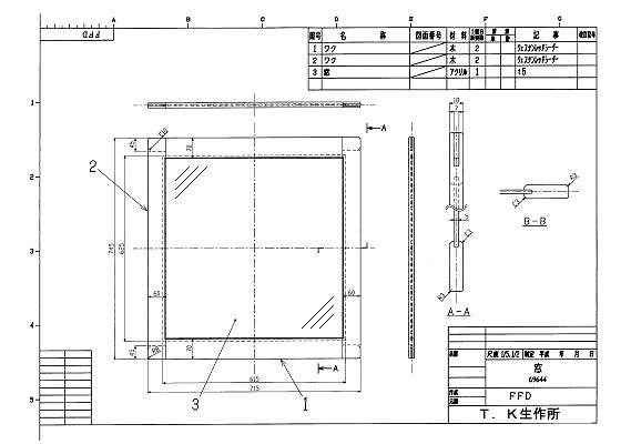
 | T.K生さんより頂いた窓枠の図面です。9600の窓は745×715mmと大きくD51のもの(670×500)と比較してかなり大きくなっています。必要となるアクリル板も手持ちの材料では足りず、買い足しました。
|
 | 窓をはめるためのレールです。断面が65×70mmで長さが1460mmもあります。
|
 | 材料のウェスタンシーダ-材とアクリル板です。
ウェスタンシーダ-材は木目が細かく、軽量で、耐久性、加工性に優れた材料です。高価であることが難点です。本来はチーク材を用いたかったのですが、材料の入手が困難であきらめました。
|
 | テーブルソーで材料を所定寸法に切り抜きます。
|
 | 窓がはまる溝を入れます。ちょうど中央に所定寸法で溝が切れるように0.5mm単位で調整します。1回目と2回目、逆さにして通すと、中心に溝が切れます。
|
 | 出来上がった材料、キャブ側面窓と後ろ側の小窓用です。
|
 | 仕上げは木目調にします。表面を綺麗にするためサンダーを掛けます。
|
 | 保存先は寒い北海道、ウレタンニスを塗り残しが無いように塗ります。まずは溝から。
毛先が奥まで届かないので、たっぷりっと液体を点け流し込みます。
|
 | 溝に流して、端より垂れてきたニスで側面を塗ります。
|
 | 丁寧に3回程度塗ると高級感が漂います。
|
 | アクリル板はジグソーを用いて切断します。割れやすいので板に負荷がかからないように注意しながら切断します。
|
 | ジグソーを用いると意外と綺麗に切断できます。
|
 | 運転室右側前窓です。
|
 | 仕上がった部品を利用して、窓の組み立に入ります。
|
 | アクリル板を保護するためのシートの周囲を約5mmカットします。
|
 | 窓枠の溝にシリコンを注入します。
|
 | 注入し終わった状況です。
|
 | 四角くなるように角を取りながら組み立てます。
|
 | 最後に、外れないように小さくきった鉄板をはめ込みます。
|
 | 仕上がった窓です。前側の小さいものが運転室後部の小窓です。大きいものが運転室側面の窓です。
|
 |
|
 | レールも設計図とおりに新製しました。当時の材料(チーク材)の入手は困難で、北米産の赤松材を代用しました。耐久性が良いよう、なるべく木目の細かいものを選びました。
|